Maple Residence
Welcome to Maple Residence
Welcome to a brand-new lifestyle designed for today’s students! Our modern one-bedroom apartments in Engomi combine smart design, comfort, and unbeatable convenience giving you everything you need to live, study, and relax in style.
Located right next to the University of Nicosia, this is the closest residential project to campus so you can forget long commutes and enjoy more time doing what you love. Surrounded by cafés, restaurants, and student hot spots, it’s the perfect place to balance academic life with fun and freedom.



Property Info
Type: Residencial
Status: Construction 2026
Storeys: 3
Location: Nicosia, Engomi
Parking: AVAILABLE
Storey: AVAILABLE
Luxury Key Features
• University Of Nicosia = 1 Min Walk
• Cafes & Student Hangouts = 1 Min Walk
• Supermarkets & Convenience Stores = 3 Min Walk
• Bus Stops & Taxi Stands = 5 Min Walk
• Nicosia City Center = 5 Min Drive
• Shoping Malls & Entertainment = 3 Min Walk
Property Info
Type: Residencial
Status: Construction 2026
Storeys: 3
Location: Nicosia, Engomi
Parking: AVAILABLE
Storey: AVAILABLE
Luxury Key Features
• University Of Nicosia = 1 Min Walk
• Cafes & Student Hangouts = 1 Min Walk
• Supermarkets & Convenience Stores = 3 Min Walk
• Bus Stops & Taxi Stands = 5 Min Walk
• Nicosia City Center = 5 Min Drive
• Shoping Malls & Entertainment = 3 Min Walk
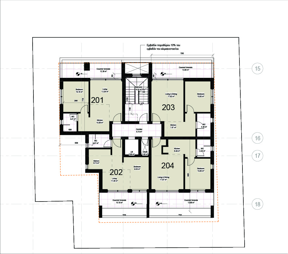
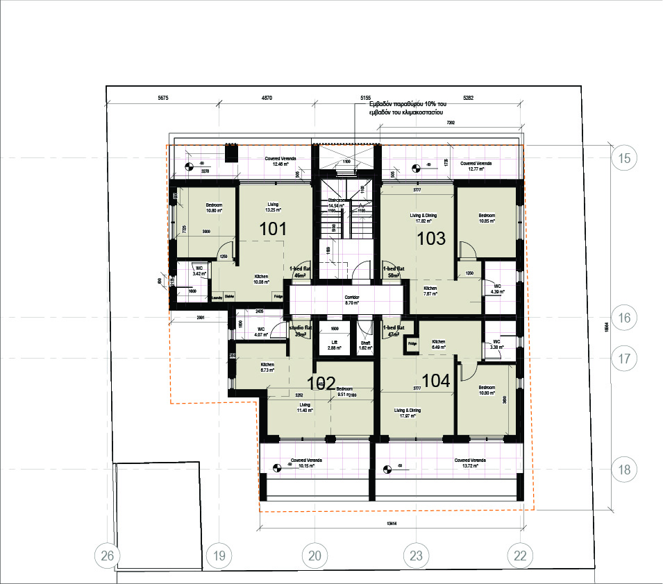
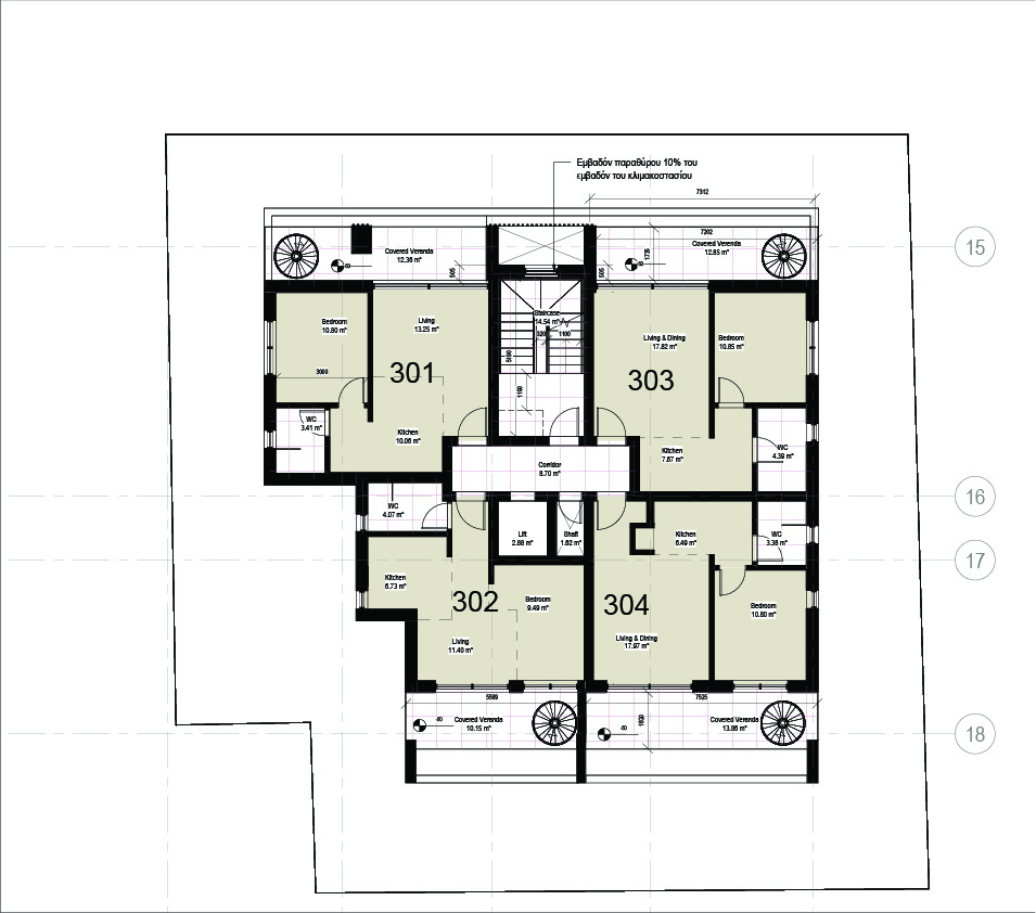
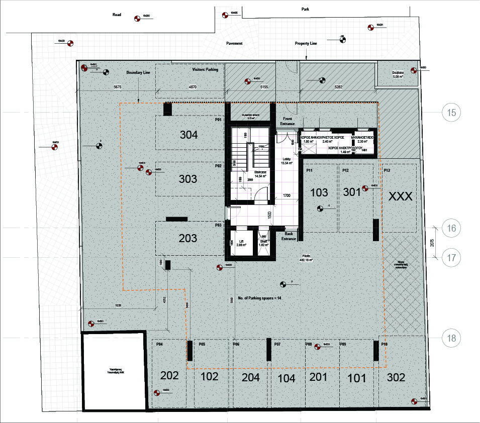
Information & Availability
No.
101
102
103
104
201
202
203
204
301
302
303
304
Bed
1-Bedroom-A
Premium Studio
1-Bedroom-S
1-Bedroom-B
1-Bedroom-A
Premium Studio
1-Bedroom-S
1-Bedroom-B
Penthouse 1-Bedroom-A
Premium Studio
Penthouse 1-Bedroom-S
Penthouse 1-Bedroom-B
Internal Area
46
40
50
47
46
40
50
47
46
40
50
47
Veranda
12
10
13
14
12
10
13
14
12
10
13
14
Parking
✓
✓
✓
✓
✓
✓
✓
✓
✓
✓
✓
✓
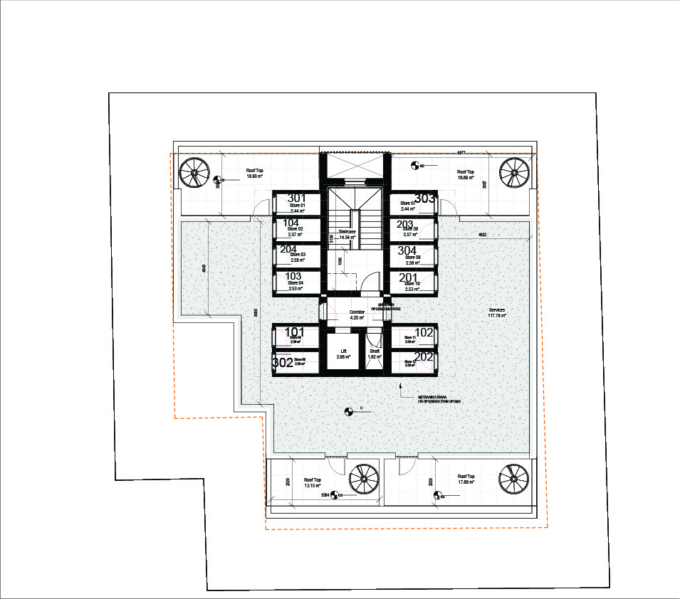
Storage
2.57
2.58
2.53
2.39
2.57
2.58
2.53
2.36
2.44
2.39
2.44
2.36
Roof Garden
-
-
-
-
-
-
-
-
18.5
12.5
18.6
17.1
Welcome to Maple Residences
Get in touch to find more